About the PropertyÂ
Welcome to St Michael's, Waterford Road, CarrickBeg, Carrick on Suir, Co. Tipperary
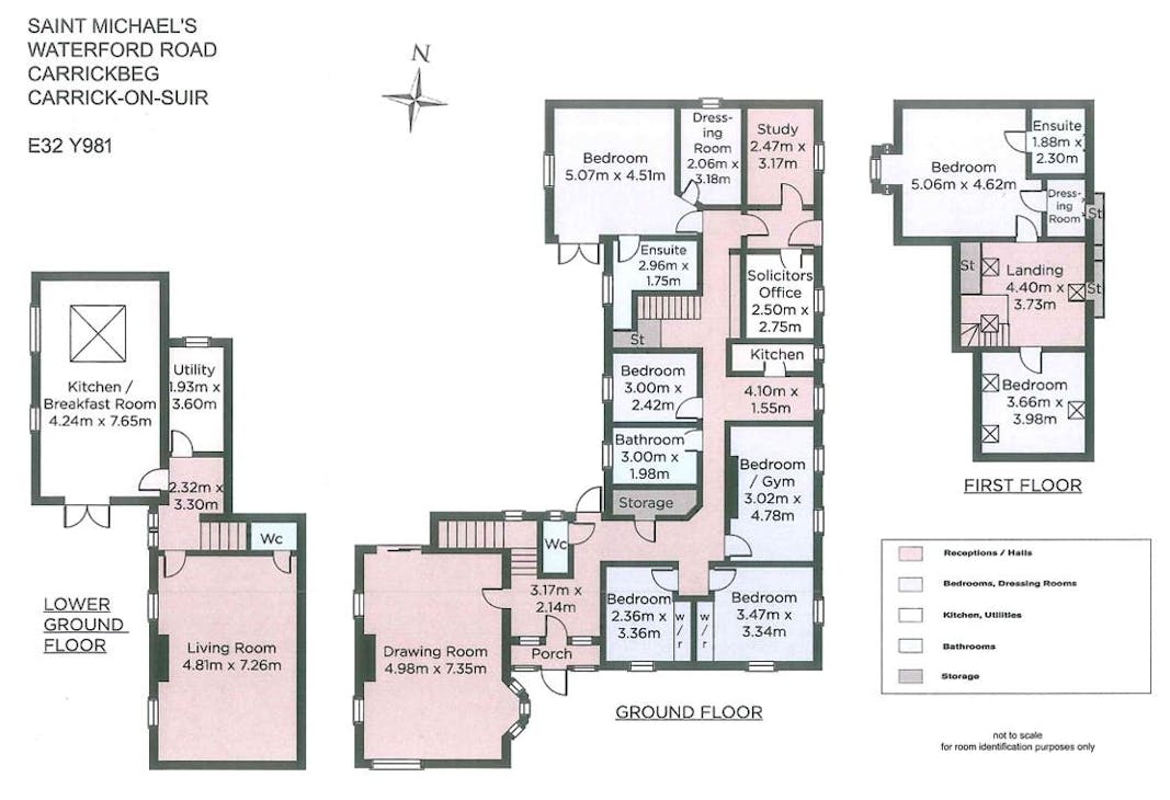
Step into probably the finest house that has come on the Carrick on Suir town market in recent years. Originally built as a bungalow in 1954, St Michael's has been meticulously remodeled and extended into a split-level, 7-bedroom luxury haven. This is not just a house; it's a lifestyle upgrade.Â
Imagine coming home to unwind on your private balcony and enjoy breathtaking 180-degree views of the River Suir as it flows through the ancient town of Carrick on Suir. Â On the opposite river bank is the Ormonde Castle, the finest example of an Elizabethan manor house in Ireland. Â Â
St Michael's is not just a house; it’s a statement. Whether you’re looking for a family home, an exclusive B&B, or a versatile multi-generational living space, this property has it all. Come and experience the blend of luxury, comfort, and elegance that only St Michael's can offer.
Features & Amenities
Video
Location
St. Michael's, Waterford Rd. CarrickBeg,
Carrick on Suir, E32 Y981
Joint Agents

Victor Shee
Shee&Hawe
051 640041
PSRA Lic. No. 001173
Photo Gallery View 20 Photos
Location:
St Michaels is located on the Waterford / Tipperary border and is close to many attractions. Â
- Within a Short Walk: The Carrick on Suir to Cahir Blueway Trail along the River Suir and Carrick's Main Street.
- Within 20-minute Drive: The Waterford Greenway (Kilmeadan); the M9 to Dublin; and Clonmel town.Â
- Within 30-minute Drive: The Copper Coast UNESCO Global Geopark, Waterford City, Dungarvan and Kilkenny City.Â
- Carrick on Suir's infrastructure is presently undergoing a major upgrade with Government Regional Funding.   Â
- Existing amenities include 3 national primary schools including a modern Gaelscoil (under construction); 3 secondary schools; modern Primary Health Care Centre; The Sean Kelly Leisure Centre pool/gyms; and a large range of clubs including Gaelic Football and Hurling, Soccer, Rugby, Golf, Athletics, etc...Â
​
Key Features:
- Smart Heating: Enjoy the convenience of gas-fired central heating controlled across four different zones.
- Utilities: Connected to mains for water, electricity, and sewage. Fibre Broadband.
- Modern Amenities: Includes a Zappi EV car charger and an outside steel insulated shed equipped with electricity and water.
- Character & Charm: Two solid fuel stoves, one with a period fireplace over a hundred years old, blend modern comfort with historical elegance.
- Stunning Views: The large, elevated site offers breathtaking views over the old town and the Ormonde Castle on the Suir river.
​
Versatility:
- Family Home: A dream home for families with its spacious, tastefully architect-designed, and decorated interiors.
- B&B Potential: Perfect layout for an exclusive B&B, offering both luxury and privacy.
- Multi-Generational Living: Ideal for multi-generational families with plenty of space and privacy for everyone.
​
Entertaining & Living:
Reception Rooms: Two large reception rooms perfect for hosting and entertaining.
Kitchen: A modern, fully fitted kitchen featuring a large marble-topped island that will be the heart of your home.
Home Office: A 2-roomed home office with separate road access, catering to all your work-from-home needs.
​
Outdoors:
- Garden: The sloping, mature gardens offer a rural and secluded feel, creating a perfect retreat while being close to the town center.
- The grounds (c.0.7 acre) are laid out on four levels with road frontage of approx. 50 metres (165 ft) with the possibility of an additional site (subject to PP). Â
- Large secure dog pen. Â
- Outdoor tap and electrical sockets.
​
St. Michael's
€650,000     Carrick on Suir, Co. Tipperary, Ireland









































Barry Walsh
Power&Walsh
052 617 0720
PSRA No. 001862-003967
Floor Plan
3D Tour






