About the PropertyÂ
Welcome to Park Side, Park View, Carrick on Suir, Co. Tipperary
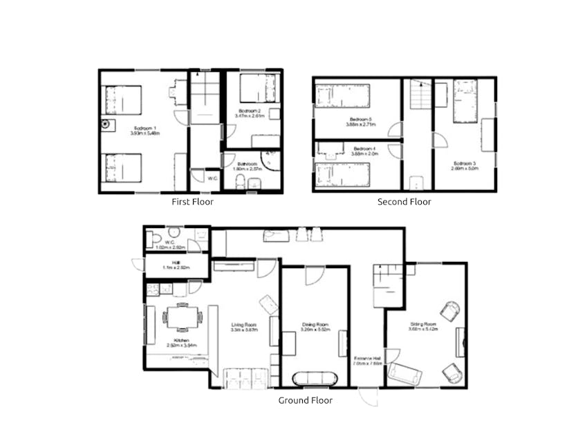
Indulge in the allure and sophistication of Park Side, an impressive period home nestled in the heart of Carrick on Suir. This expansive south-facing residence offers captivating views of Carrick's Town Park and Fair Green, beckoning you to a life of refined elegance. Featuring 5 spacious bedrooms, Park Side provides ample room for family living and hosting guests. Maintained in excellent condition throughout, this home offers comfort and convenience from the moment you step inside.Â
Ideally situated next to the Town Park, Fair Green, and the Public Library, and just a short stroll from the town center, Park Side offers the perfect blend of urban living and tranquil park-side retreat. The property also boasts secluded walled gardens, creating a private sanctuary for relaxation and play. Additionally, the old stone and slate outbuildings offer endless potential for development, be it as a second residential unit (subject to Planning permission) or as spacious workshops for hobbies.Â
With its large grounds and potential for expansion, Park Side presents a unique opportunity for transformation, whether for personal use or investment. The property's flexibility is further highlighted by the option to purchase it in two separate lots, catering to a variety of needs and budgets. Whether your vision is a grand family home, an ambitious development project, or a combination of both, Park Side offers boundless potential.
Features & Amenities
Location
Park Side,
Park View, Carrick-on-Suir,
Tipperary E32 FR83
Negotiator

Victor SheeÂ
086-813 6166
PSRA License No. 001173-001150
Photo Gallery View 20 Photos
Location:
Park Side, set in the heart of Carrick-on-Suir, Tipperary, enjoys a prime location with a wealth of attractions right on its doorstep.
- Approximately 1.5 kilometers distance: The Osmond Castle is a historical gem featuring the best example of an Elizabethan manor house.
- Approximately 3 kilometers distance: Carrick-on-Suir Golf Club will be found, a beautiful 18-hole golf course set in scenic surroundings.Â
- Approximately 2 kilometers distance: The Greenway, a scenic walking and cycling trail along the Suir River, is perfect for outdoor enthusiasts.Â
- Just 9 kilometers away lies the Faugheen 50 Motorcycle Road Race Circuit, a renowned track cherished by motor enthusiasts.
- About 10 kilometers away, Slievenamon, a beloved mountain for hiking, rewards climbers with breathtaking panoramic views from its summit.
​
Key Features:
- Grand Period House: A stunning large home with timeless charm.
- South-Facing Splendor: Overlooks the serene Town Park, basking in natural light.
- Spacious Living: Boasts 5 well-appointed bedrooms.
- Prime Location: Just a stone's throw from the bustling Town Centre.
- Expansive Grounds: Features a large site with secluded, walled gardens for privacy and tranquility.
- Historic Outbuildings: Includes a range of old stone and slate structures, rich with character.
​
Versatility:
- Multi-Purpose: Perfect for a family home, a potential business venture, or a combination of both.
- Development Potential: Offers ample opportunities for further development.
- Flexible Sale: Can be sold in 2 separate lots, catering to various needs.
​
Entertaining & Living:
- Grand Reception Spaces: Features expansive living areas, perfect for socializing and celebrations.
- Versatile Layout: Can be utilized as a single large residence or divided into two separate lots, providing flexibility for hosting events or accommodating guests.
​
Outdoors:
- Privacy and Tranquility: Enjoy peaceful moments in the secluded gardens, shielded by historic walls, creating a private oasis in the heart of town.
- Historic Heritage: Features charming old stone and slate outbuildings, perfect for restoration into unique outdoor spaces or studios.
​
​
Park Side
€450,000     Carrick on Suir, Co. Tipperary





































Floor Plan
3D Tour
Aeriel Video
MIPAV, REV






